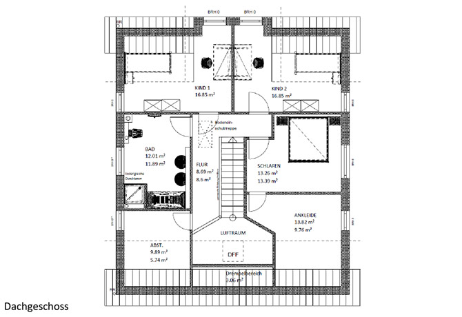
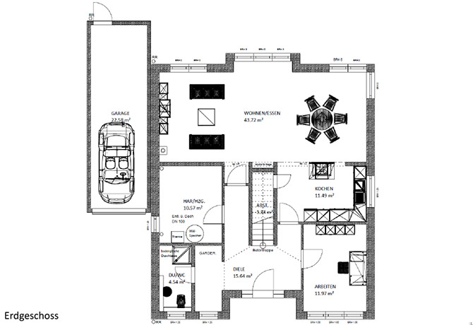
Einfamilienhaus mit Satteldachgaube

Wohnfläche (NGF gem. DIN 277) ca. 190 qm, ca. 12,5m Länge x 10,5m Breite (optional mit Keller und Garage)

Datenschutz  |  Impressum